Der Flügelhausgrundriss, Flexibler Einband
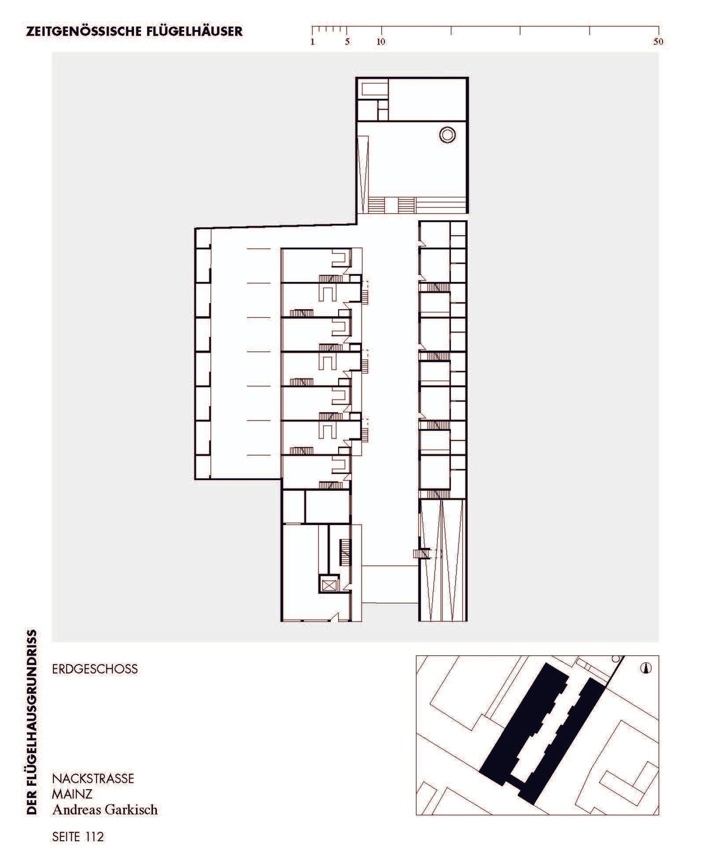
Der Flügelhausgrundriss
- Stadthäuser
(soweit verfügbar beim Lieferanten)
- Herausgeber:
- Georg Ebbing, Christoph Mäckler
- Verlag:
- Jovis Verlag GmbH, 10/2025
- Einband:
- Flexibler Einband
- Sprache:
- Deutsch
- ISBN-13:
- 9783986120849
- Artikelnummer:
- 11636281
- Umfang:
- 264 Seiten
- Sonstiges:
- Num. coloured figs.
- Gewicht:
- 1091 g
- Erscheinungstermin:
- 6.10.2025
Klappentext
The Flügelhaus-a residential building with wings extending to the rear from a main structure on the street-is a type of European urban architecture well suited to contemporary needs. Its rear wings serve a variety of purposes-social, ecological, and economic, reflecting carefully considered urban design. Creating courtyards and gardens, they also reduce street space and lower infrastructure costs.
The book demonstrates how this European typology supports key concepts in today's city planning and urban design, including the sponge city, the social city, and the compact city. A sunlight study, insights into climate-conscious and energy-efficient construction, and examples of both subsidized and market-rate housing leave no doubt: Flügelhäuser help create vibrant, livable urban spaces.
Following Der Eckhausgrundriss , Der Flügelhausgrundriss is the second volume in the series Bücher zur Stadbaukunst, which explores typologies of European housing. The upcoming volume Gewerbehofhäuser, scheduled for 2026, will complete the trilogy.
- In-depth analysis and design concepts for various social housing floor plans
- Floor plan and isometric diagrams illustrating the sunlight study
- A practical perspective on balancing quality and cost in rental housing
Biografie (Christoph Mäckler)
Christoph Mäckler, geb. 1951 in Frankfurt am Main, Studium der Architektur in Darmstadt und Aachen, Arbeit bei O. M. Ungers und Gottfried Böhm, seit 1981 eigenes Büro in Frankfurt, 1991 - 1996 Vorstandsvorsitzender des Bundes Deutscher Architekten BDA, seit 1998 Professor an der Technischen Universität Dortmund und Gründer des dortigen Instituts für Stadtbaukunst 2008.Anmerkungen:
Bitte beachten Sie, dass auch wir der Preisbindung unterliegen und kurzfristige Preiserhöhungen oder -senkungen an Sie weitergeben müssen.
